790 Cedar View Dr #401, LeMars, IA 51031

LeMars, IA Residential Homes for Sale with Real Estate MLS # 828735

$285,000

  • 3
  • 3
  • 2104
  • Active
  Virtual Tour
Price Decreased

General Description

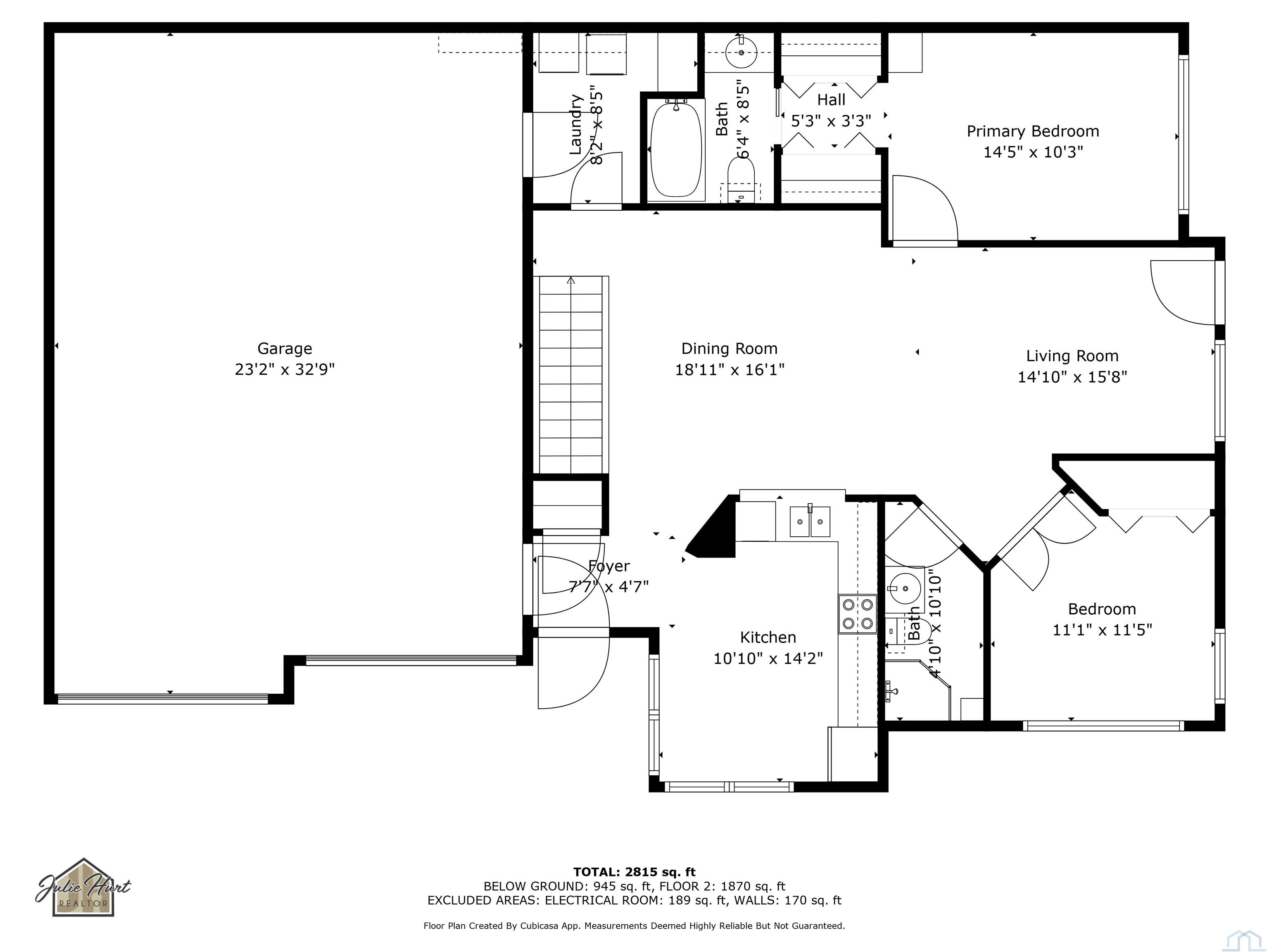
Discover effortless living in this 3-bedroom, 3-bath condo, complete with vaulted ceilings, main floor laundry, and an oversized 2-car attached garage. The primary suite offers a full private bath and dual closets. The second bedroom on the main floor has most recently been used as an office and has the convenience of a bathroom with shower in the next room. The cozy deck off the living room provides outdoor enjoyment and is maintenance free. The basement is partially finished with a bedroom and full bath. Remaining portions of the basement are a blank slate with painted foundation walls and cement flooring. The garage is 32 feet deep which allows for extra storage and your vehicles! All appliances are included and a manageable $150 monthly HOA fee, make this home the perfect combination of comfort and value.

Legal: UNIT 401 BLDG 4 HILLCREST TOWNHOMES PT LOT 12 BLK 2 HILLCREST FIRST LE MARS
Status: Active

Property Information

828735

$285,000

790 Cedar View Dr 401

Surrounding Areas/Other Areas

LeMars

Plymouth

IA

Sale

Residential

Townhouse

Ranch

Block, Partially Finished

2104

2

Attached

155

1998

3

3

51031

2597

LISTED BY

Century 21 ProLink - Le Mars, Julie Hurt (712.540.7757)

PROPERTY LOCATION

MORTGAGE CALCULATOR


Similar listings

$300,000

Status: Active
2361 18th St SW, LeMars, IA 51031

  825730

 4

 3

  2,430


Listed by : KELLER WILLIAMS SIOUXLAND, MARK VOS (712.253.1449)

$250,000

Status: Active
10 7th Ave SE, LeMars, IA 51031

  828503

 3

 2

  2,194


Listed by : BRUCE BROCK REAL ESTATE, AUSTIN POPKEN (712.539.1178)
Price Decreased

$349,000

Status: Active
520 Central Ave SE, LeMars, IA 51031

  828974

 3

 3

  2,074


Listed by : REAL BROKER, LLC, ADAM DOUGHAN (712.441.6097)
Price Decreased

$224,999

Status: Active
321 Central Ave SW, LeMars, IA 51031

  829468

 4

 4

  2,434


Open House: 25 Oct, 2025 (10:00 AM to 11:00 AM)
Listed by : UNITED REAL ESTATE SOLUTIONS, AIDAN VANDERLOO (712.577.1267)
Open House Price Decreased

$220,000

Status: Active
626 3rd St SW, LeMars, IA 51031

  829647

 2

 1

  980


Listed by : CENTURY 21 PROLINK - LE MARS, JULIE HURT (712.540.7757)
Price Decreased

$294,000

Status: Active
321 2nd Ave SE, LeMars, IA 51031

  829962

 4

 2

  2,671


Listed by : CENTURY 21 PROLINK - LE MARS, JULIE HURT (712.540.7757)
Price Decreased
This Residential property located at 790 Cedar View Dr #401 (MLS # 828735) falls under the category of Residential Homes for Sale in LeMars, IA. Listed on , this property is priced at $285,000. Featuring 3 bedrooms and 3 bathrooms, this property at 790 Cedar View Dr #401 offers 2104 sqft of living space and was constructed in 1998. Whether you are interested in exploring new listings in LeMars or specifically looking at properties on 790 Cedar View Dr #401, you can access all market statistics and community information you need.

For more information on 790 Cedar View Dr #401 and other properties in the surrounding Surrounding Areas/Other Areas, feel free to contact RE/MAX Lakes Realty, the leading real estate agency in the Iowa Great Lakes region and the host of . Our experienced team is ready to assist you with your real estate search in and around LeMars, IA.
Rachel Carlson - REALTOR/OWNER, Pricing Strategy Advisor (PSA)

Rachel Carlson

REALTOR/OWNER, Pricing Strategy Advisor (PSA)

Cassie Chilton - Office Manager & Compliance Specialist

Cassie Chilton

Office Manager & Compliance Specialist

Ask About this Property #828735

Share


NEWSLETTER