Sioux Center, IA Commercial Homes for Sale with Real Estate MLS # 831638
$1,600,000
N/A
N/A
9600
Active
General Description
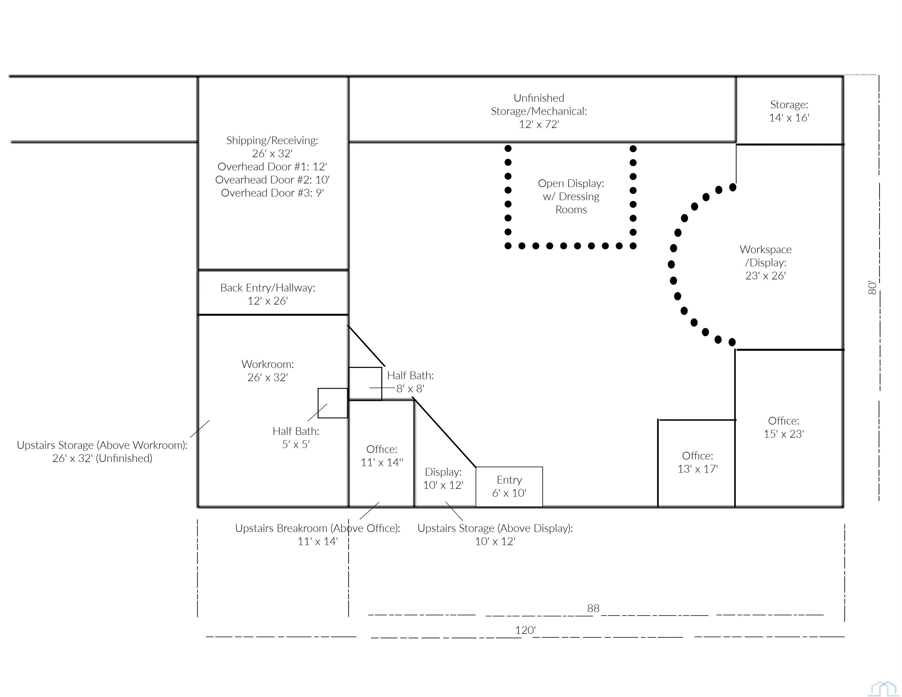
An exceptional opportunity to expand or relocate your business in one of Sioux Center’s most visible and active commercial corridors! This impressive steel-frame and metal-clad building, constructed in 1998, reflects premier construction standards and enduring quality craftsmanship. Offering over 11,000 square feet of well-designed office and retail space, the property delivers both functionality and adaptability for a wide range of professional, retail, or service-oriented uses. The interior features a large, open floor plan complemented by numerous private offices, allowing for efficient workflow, customization, and expansion. Three loading docks, generous warehouse and storage areas, and convenient on-site customer parking enhance the building’s operational efficiency. Positioned in a progressive and growing community, this location provides excellent exposure and accessibility for both clients and employees. The property has been consistently well-maintained and offers infrastructure designed to support long-term use. Multi-zoned heating and cooling systems promote energy efficiency and comfort throughout the building, while a central vacuum system adds to overall convenience. Office and restroom areas are in good condition and accessible to the public, supporting professional and customer-focused operations. A mezzanine level expands the usable space and includes additional storage, office space, and a break room, offering flexibility for management, administrative functions, or staff amenities. The building’s layout allows for seamless adaptation to a variety of business models. The exterior is in excellent condition, featuring properly graded grounds, lawn irrigation, and well-maintained landscaping that contributes to strong curb appeal. Located within an active commercial zone, the property benefits from high visibility, steady traffic, and a strong surrounding business presence!
Legal: L1 BLK 4 EXC N20' REPL OF PT BLKS 3&4 SOUTH TOWN COMMERCIAL SUBD
This Commercial property located at 1825 2nd Ave SW (MLS # 831638) falls under the category of Commercial Homes for Sale in Sioux Center, IA. Listed on , this property is priced at $1,600,000. Featuring N/A bedrooms and N/A bathrooms, this property at 1825 2nd Ave SW offers 9600 sqft of living space and was constructed in 1998. Whether you are interested in exploring new listings in Sioux Center or specifically looking at properties on 1825 2nd Ave SW, you can access all market statistics and community information you need.
For more information on 1825 2nd Ave SW and other properties in the surrounding Surrounding Areas/Other Areas, feel free to contact RE/MAX Lakes Realty, the leading real estate agency in the Iowa Great Lakes region and the host of . Our experienced team is ready to assist you with your real estate search in and around Sioux Center, IA.
The newsletter is sent periodically and will update you on the latest real estate news
and offers.
Disclaimer
Leadpond.com provides these links as a convenience, and in no way represents the Beacon Site or its data. These links are based on the parcel ID input by the respective MLS member, and on occassion, there may be more than one Parcel ID for each listing. If the Parcel ID is incorrect, or if there are more than one Parcel ID, then webpage displayed may be incorrect or inaccurate. User is advised to contact Demo Agent to help verify any information found herein.
Sign In
Sign in to your account to continue.
Create Account for Listing Alerts
Easily save your search criteria to get notified of new listings and price changes.
Forgot Password
If you've forgotten password of your account, Please enter your email address, and you will be emailed a link to reset your password.